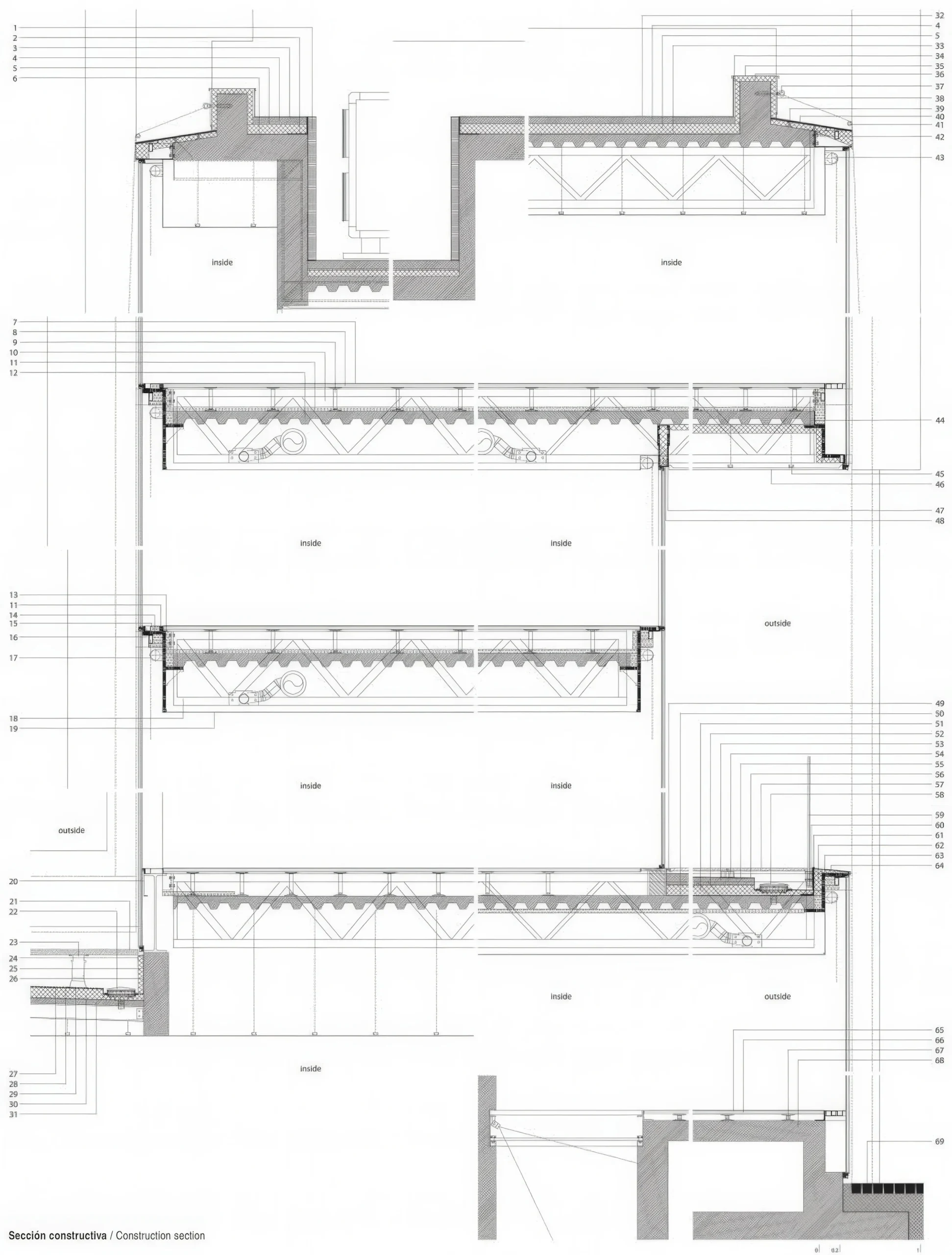
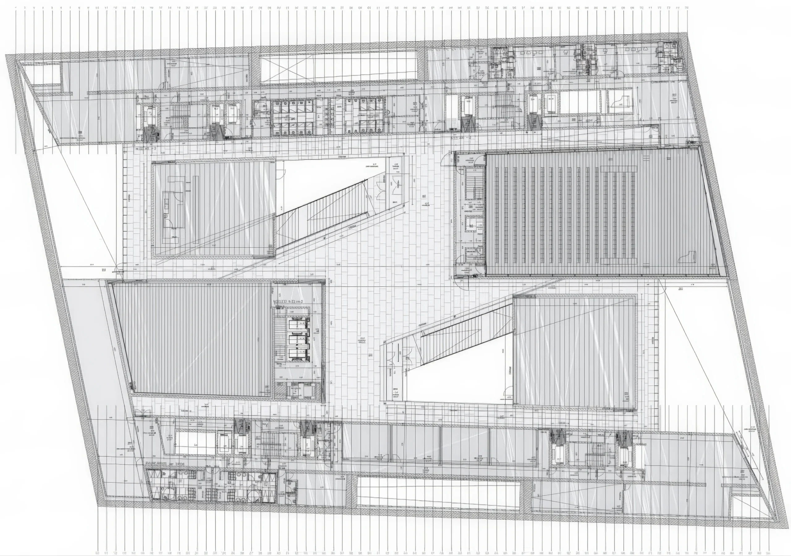
EDP集团总部大楼 / EDP Group Head Office | 艾雷斯·马特乌斯建筑事务所|Aires Mateus 艾雷斯·马特乌斯建筑事务所|Aires Mateus • 2025-11-11 上午10:30 • 公共建筑设计, 建筑师设计, 建筑设计, 文化建筑设计 EDP集团总部大楼由艾雷斯·马特乌斯建筑事务所设计,位于葡萄牙里斯本,是一座大型企业办公建筑。项目通过沿河布置的建筑体量围合出公共广场,以垂直遮阳构件塑造动态立面,展现了当代建筑与城市文脉的融合。 设计: 艾雷斯·马特乌斯建筑事务所|Aires Mateus 类型: 文化建筑设计 功能: 办公楼 风格: 当代建筑 材料: 混凝土 钢材 玻璃 尺度: 大型建筑 地点:里斯本 时间: 2015年 项目概述 EDP集团总部大楼位于葡萄牙里斯本,是一座大型企业办公建筑,设计于2008年,2015年建成。项目沿河岸布局,通过多个体量组合形成独特的建筑形态,总面积约—平方米。 设计理念 艾雷斯·马特乌斯建筑事务所从里斯本城市历史与填海造地的场地特征出发,以沿河展开的建筑体量回应城市文脉。设计通过围合公共广场的“手势”,创造了一个连接城市与河流的公共空间,赋予建筑社会意义。 空间与功能 EDP集团总部大楼的空间组织围绕中央公共广场展开,办公区域沿河岸线性布置。建筑通过剖面设计创造内部庭院,地面层设置公共功能,上层为办公空间,形成清晰的垂直功能分区与流畅的人流动线。 材料与技术 建筑采用白色预制混凝土板、钢材和玻璃为主要材料,立面通过垂直遮阳构件实现光影变化。结构体系结合了钢框架与混凝土楼板,遮阳系统同时承担结构调节与环境保护功能,体现了技术与美学的统一。 项目特色与启发 EDP集团总部大楼以独特的体量组合与立面处理,展示了当代办公建筑如何平衡企业形象与公共性。项目对建筑师在大型公共建筑设计中处理城市关系、创造有意义的公共空间具有重要参考价值。 设计团队 艾雷斯·马特乌斯建筑事务所由曼努埃尔·艾雷斯·马特乌斯和弗朗西斯科·艾雷斯·马特乌斯兄弟创立,以简洁的几何形态、对光线的敏感把握和对场地文脉的深刻理解著称,在住宅、文化建筑和城市设计领域享有国际声誉。 项目概述 EDP集团总部大楼位于葡萄牙里斯本,是一座大型企业办公建筑,设计于2008年,2015年建成。项目沿河岸布局,通过多个体量组合形成独特的建筑形态,总面积约—平方米。 设计理念 艾雷斯·马特乌斯建筑事务所从里斯本城市历史与填海造地的场地特征出发,以沿河展开的建筑体量回应城市文脉。设计通过围合公共广场的“手势”,创造了一个连接城市与河流的公共空间,赋予建筑社会意义。 空间与功能 EDP集团总部大楼的空间组织围绕中央公共广场展开,办公区域沿河岸线性布置。建筑通过剖面设计创造内部庭院,地面层设置公共功能,上层为办公空间,形成清晰的垂直功能分区与流畅的人流动线。 材料与技术 建筑采用白色预制混凝土板、钢材和玻璃为主要材料,立面通过垂直遮阳构件实现光影变化。结构体系结合了钢框架与混凝土楼板,遮阳系统同时承担结构调节与环境保护功能,体现了技术与美学的统一。 项目特色与启发 EDP集团总部大楼以独特的体量组合与立面处理,展示了当代办公建筑如何平衡企业形象与公共性。项目对建筑师在大型公共建筑设计中处理城市关系、创造有意义的公共空间具有重要参考价值。 设计团队 艾雷斯·马特乌斯建筑事务所由曼努埃尔·艾雷斯·马特乌斯和弗朗西斯科·艾雷斯·马特乌斯兄弟创立,以简洁的几何形态、对光线的敏感把握和对场地文脉的深刻理解著称,在住宅、文化建筑和城市设计领域享有国际声誉。 本文来自 © 艾雷斯·马特乌斯建筑事务所|Aires Mateus, 发布于 © 建筑学院官方网站。 未经授权,禁止转载或摘编。 编辑版本版权归 © 建筑学院官方网站 所有, 设计、图纸及照片版权归设计方 © 艾雷斯·马特乌斯建筑事务所|Aires Mateus ↗ 所有。 查看作者在建筑学院发布的更多作品: 艾雷斯·马特乌斯建筑事务所|Aires Mateus @ 建筑学院官方网站 Aires MateusEDP Group Head Office办公建筑设计里斯本办公建筑 艾雷斯·马特乌斯建筑事务所|Aires Mateus事务所 & 设计师 下载原图 收藏 0 关于作者 艾雷斯·马特乌斯建筑事务所|Aires Mateus事务所 & 设计师 关注私信 13 文章 0 评论 0 粉丝 艾雷斯·马特乌斯建筑事务所(Aires Mateus)由葡萄牙建筑师Manuel Aires Mateus和Francisco Aires Mateus兄弟于1988年在里斯本创立。该事务所以极简主义风格著称,强调建筑的精神表达和永恒品质,作品关注物质与文化世界的关系,追求抽象形式和空间平衡。其项目涵盖住宅、度假屋等,在全球获奖无数,并在哈佛大学等多所高校任教,塑造了葡萄牙当代建筑的深刻影响力。 弗拉门卡尔海滩中学 / ‘Playa Flamenca’ Secondary School | 阿尔弗雷多·帕亚|Alfredo Payá 上一篇 2025-11-11 上午8:50 “景镇融合”魔鬼城-西部乌镇2025首届艺术装置设计大赛 | 竞赛 下一篇 2025-11-11 下午12:00 猜你喜欢 Moganshan Road 办公楼 Office Building Moganshan Road | 大卫·奇珀菲尔德建筑事务所|David Chipperfield 2025-11-27 公共建筑设计 欧洲阿乐街办公大楼 Europaallee Office Building | 克里斯蒂安·凯雷兹|Christian Kerez 5天前 公共建筑设计 CASA EN ESTRELA / HOUSE IN ESTRELA | 艾雷斯·马特乌斯建筑事务所|Aires Mateus 2025-11-11 公共建筑设计 Lyon Confluence 办公楼 Office Building,Lyon Confluence | 克里斯蒂安·凯雷兹|Christian Kerez 1天前 公共建筑设计 DNB总部大厦,中央大楼 / DNB Headquarters, Central Building | MVRDV 建筑事务所 2025-11-09 公共建筑设计 青岛文化艺术中心 / Qingdao Culture and Art Center | 霍尔 Steven Holl 2025-11-11 公共建筑设计 发表回复 请登录后评论...登录后才能评论 提交