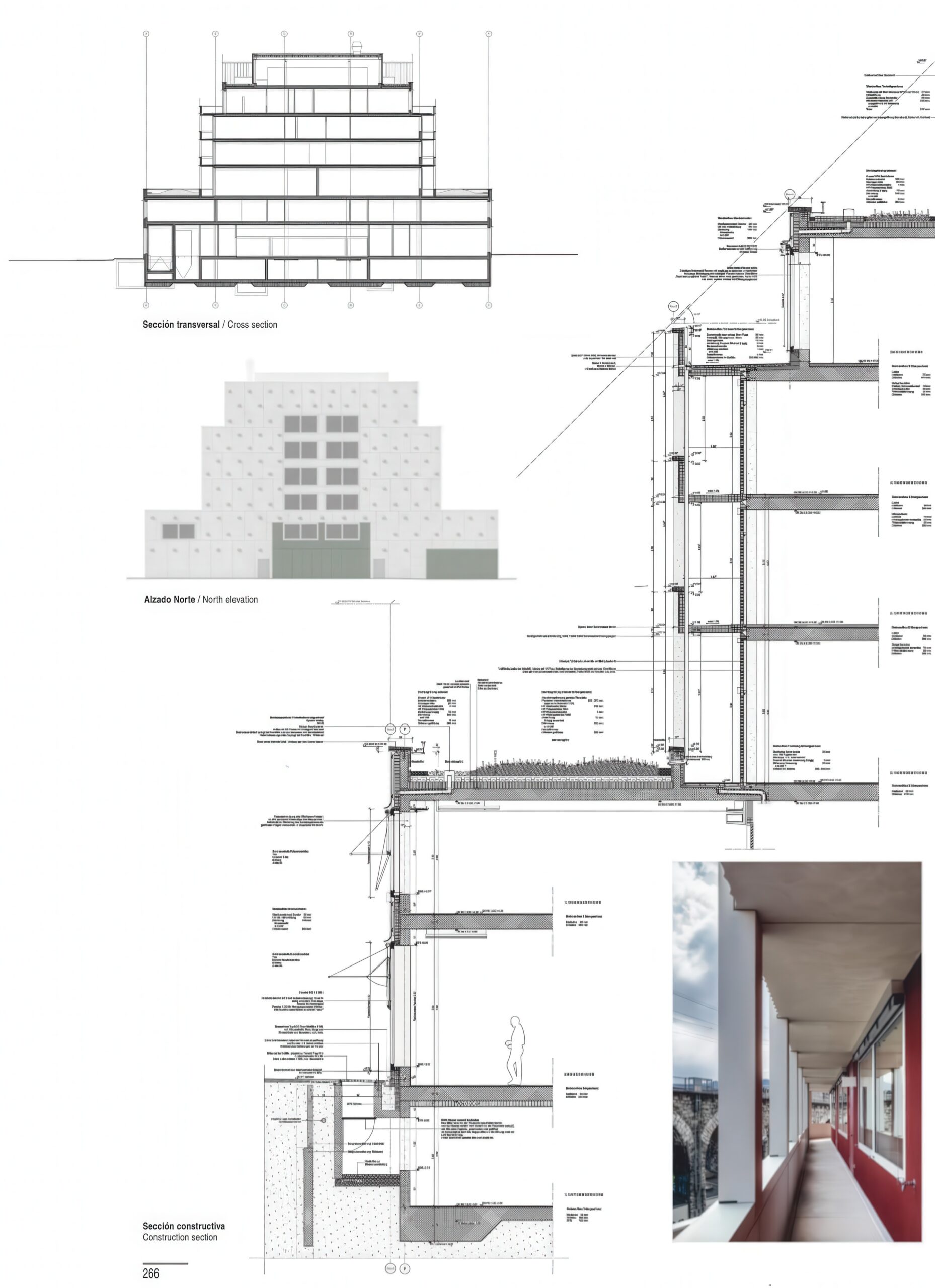
圣雅各基金会,苏黎世 St Jakob Foundation, Zurich | 卡鲁索·圣约翰建筑事务所|Caruso St John 卡鲁索·圣约翰建筑事务所|Caruso St John • 2025-12-12 上午8:50 • 公共建筑设计, 商业与综合建筑, 城市综合体, 建筑师, 建筑设计, 文化建筑设计 圣雅各基金会位于瑞士苏黎世西部工业区,是一座为残障人士提供工作机会的综合建筑。项目由卡鲁索·圣约翰建筑事务所设计,采用紧凑体量整合烘焙工坊、包装车间及办公设施。建筑以预制混凝土立面与贝壳浮雕为特色,巧妙连接城市工业历史与当代功能需求。 设计: 卡鲁索·圣约翰建筑事务所|Caruso St John 类型: 文化建筑设计 功能: 城市综合体 风格: 当代建筑 材料: 混凝土 玻璃 金属板 尺度: 中型建筑 地点:苏黎世 时间: 2015年 项目简介 圣雅各基金会位于瑞士苏黎世西部工业区,是一座为残障人士提供职业培训与工作场所的综合建筑。项目建筑面积约5000平方米,设计于2015年,2018年建成使用。 设计理念 设计团队以”工作建筑”为核心理念,通过体量操作在工业遗产与城市更新间建立对话。建筑既保持工业仓库的坚实特质,又融入宫殿式立面细节,形成独特的空间叙事。 空间与功能 建筑采用垂直功能分区:底层设置大型烘焙工坊与包装车间,上部四层为办公与培训空间。南、东、西立面设置预制混凝土阳台系统,创造丰富的室内外过渡空间。 材料与技术 主要采用预制混凝土板外墙系统,立面饰以圣雅各贝壳符号的高浮雕。大尺寸开窗确保深层空间自然采光,结构体系呼应纽约铸铁建筑传统。 设计团队 卡鲁索·圣约翰建筑事务所创立于1990年,以文化建筑与城市更新项目著称,擅长通过材料表达与空间叙事回应场地文脉。 项目简介 圣雅各基金会位于瑞士苏黎世西部工业区,是一座为残障人士提供职业培训与工作场所的综合建筑。项目建筑面积约5000平方米,设计于2015年,2018年建成使用。 设计理念 设计团队以”工作建筑”为核心理念,通过体量操作在工业遗产与城市更新间建立对话。建筑既保持工业仓库的坚实特质,又融入宫殿式立面细节,形成独特的空间叙事。 空间与功能 建筑采用垂直功能分区:底层设置大型烘焙工坊与包装车间,上部四层为办公与培训空间。南、东、西立面设置预制混凝土阳台系统,创造丰富的室内外过渡空间。 材料与技术 主要采用预制混凝土板外墙系统,立面饰以圣雅各贝壳符号的高浮雕。大尺寸开窗确保深层空间自然采光,结构体系呼应纽约铸铁建筑传统。 设计团队 卡鲁索·圣约翰建筑事务所创立于1990年,以文化建筑与城市更新项目著称,擅长通过材料表达与空间叙事回应场地文脉。 本文来自 © 卡鲁索·圣约翰建筑事务所|Caruso St John, 发布于 © 建筑学院官方网站。 未经授权,禁止转载或摘编。 编辑版本版权归 © 建筑学院官方网站 所有, 设计、图纸及照片版权归设计方 © 卡鲁索·圣约翰建筑事务所|Caruso St John ↗ 所有。 查看作者在建筑学院发布的更多作品: 卡鲁索·圣约翰建筑事务所|Caruso St John @ 建筑学院官方网站 卡鲁索·圣约翰圣雅各基金会工业更新苏黎世预制混凝土 卡鲁索·圣约翰建筑事务所|Caruso St John事务所 & 设计师 下载原图 收藏 0 关于作者 卡鲁索·圣约翰建筑事务所|Caruso St John事务所 & 设计师 关注私信 20 文章 0 评论 0 粉丝 卡鲁索·圣约翰建筑事务所(Caruso St John)是成立于1990年的英国知名建筑事务所,由亚当·卡鲁索(Adam Caruso)和彼得·圣约翰(Peter St John)合伙创立。该事务所以其深刻的概念思考、对历史文脉的尊重及精湛的材料运用而闻名于世,致力于创造“可随岁月流转缓慢感知的、拥有情感内容的建筑”。其代表作——伦敦纽波特街美术馆(Newport Street Gallery)曾荣获2016年英国斯特林建筑奖,砖屋(Brick House)和沃尔索尔新艺术画廊等项目也曾入围该奖项。 A Mews Collection A Mews Collection | 6a 建筑事务所|6a architects 上一篇 2025-12-11 下午9:03 河边小屋 Huts on the River | 艾雷斯·马特乌斯建筑事务所|Aires Mateus 下一篇 2025-12-13 下午8:51 猜你喜欢 巴伦西亚管理科学大学 Management Science University, Bourdeaux | 拉卡东与瓦萨尔建筑师事务所|Lacaton & Vassal 2025-11-10 公共建筑设计 乌格韦斯特大街小学 Thurgauerstrasse Primary School | Karamuk Kuo 建筑事务所|Karamuk Kuo 2025-10-31 公共建筑设计 A Mews Collection A Mews Collection | 6a 建筑事务所|6a architects 2025-12-11 公共建筑设计 重构斯德哥尔摩市图书馆项目 Restructuring Stockholm City Library | 卡鲁索·圣约翰建筑事务所|Caruso St John 2025-12-07 公共建筑设计 罗马别墅博物馆 Museum for a Roman Villa | 卡鲁索·圣约翰建筑事务所|Caruso St John 2025-12-04 公共建筑设计 欧洲艾莱大道21号办公楼 Office Building ‘Europaallee 21’ | 大卫·奇珀菲尔德建筑事务所|David Chipperfield 2025-11-24 公共建筑设计 发表回复 请登录后评论...登录后才能评论 提交