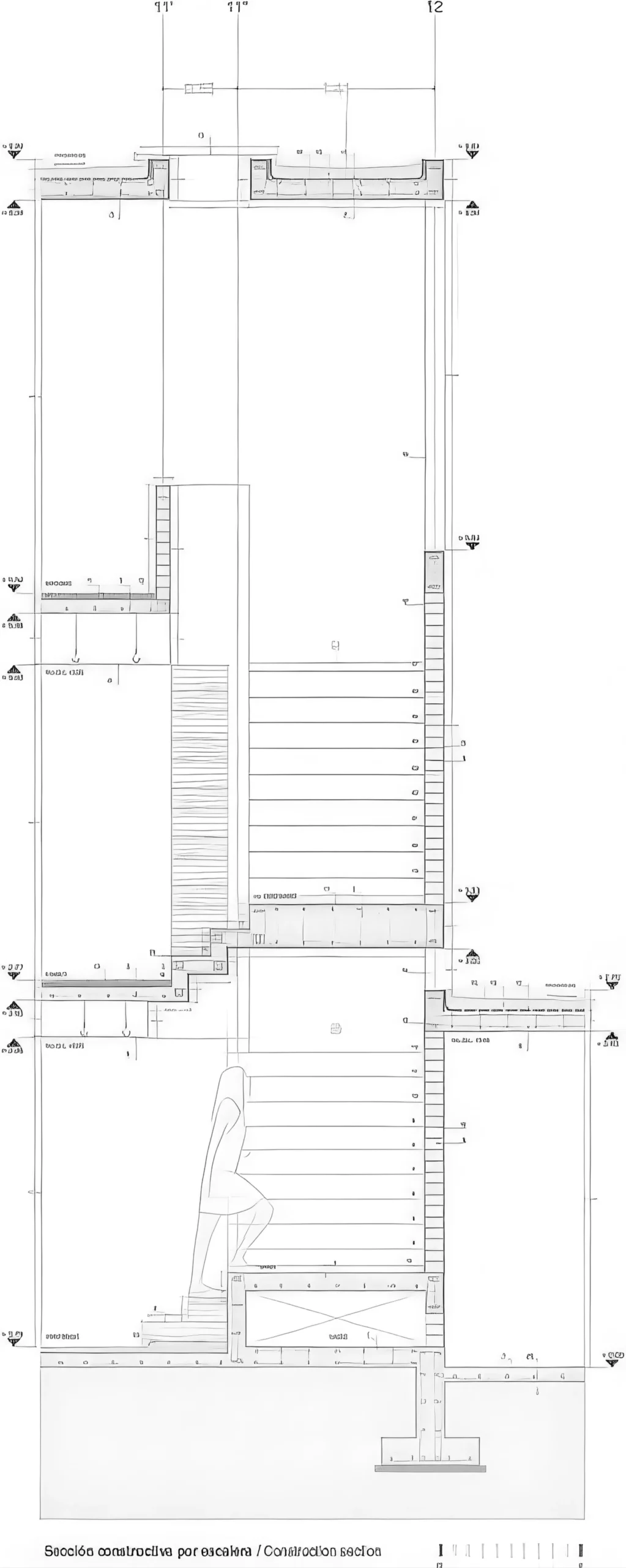
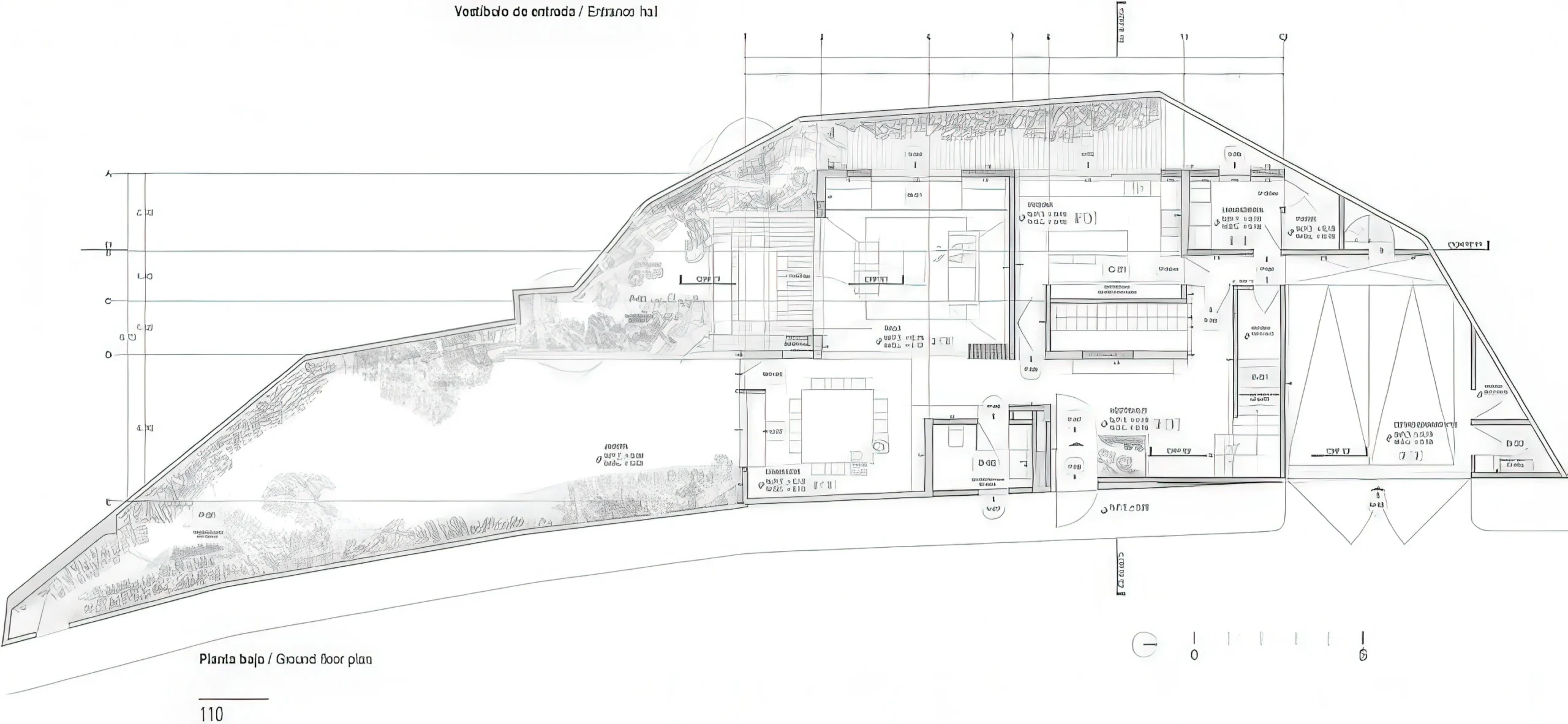
DDH房子扩建和翻新 / DDH HOUSE ENLARGEMENT AND RENOVATION | Taller Héctor Barroso tallerhectorbarroso • 2026-02-21 下午10:06 • 住宅建筑设计, 建筑设计, 独立住宅设计 DDH房子扩建和翻新项目由Taller Héctor Barroso设计,位于墨西哥城,是对一座30多年历史的住宅进行的改造更新。设计通过重新配置建筑空间,巧妙平衡隐私与开放,运用深色外墙与自然材料营造光影变化,将室内外空间无缝连接。 设计: tallerhectorbarroso 类型: 独立住宅设计 功能: 独立住宅 风格: 现代主义 材料: 混凝土 木材 玻璃 尺度: 小型建筑 地点:墨西哥城 时间: 2019年 项目概述 DDH房子扩建和翻新项目位于墨西哥城,是一座具有30多年历史的住宅改造项目。Taller Héctor Barroso建筑事务所在2017年至2019年间完成了这一住宅更新工程,通过重新配置建筑空间,为新的居住者创造了更适应当代生活方式的居住环境。 设计理念 DDH房子扩建和翻新项目的核心设计理念是在保留原有建筑特征的基础上,重新定义室内外空间关系。设计团队通过精心控制的开窗策略,在临街立面保持私密性的同时,内部空间逐步向花园环境开放,创造了一种渐进式的空间体验。 空间与功能 DDH房子扩建和翻新项目的空间组织体现了层次分明的设计逻辑。临街立面仅设置少量小窗,保护居住隐私;内部则通过一系列开口引入自然光线,空间逐渐向外延伸。建筑最终融入花园环境,大型窗户模糊了室内外界限,创造了连续的空间体验。 材料与技术 DDH房子扩建和翻新项目主要运用混凝土、木材和玻璃等材料。深棕色近乎黑色的外墙与灰色混凝土、室内木材形成鲜明对比,强化了光影效果。白色混凝土楼梯和金属吊顶等细节处理,展现了材料选择的精心考量。 项目特色与启发 DDH房子扩建和翻新项目的独特之处在于其对既有建筑价值的尊重与创新性改造。项目展示了如何在有限条件下通过精准的空间操作和材料运用,实现建筑品质的全面提升,为类似的老建筑改造项目提供了有价值的参考。 设计团队 Taller Héctor Barroso是墨西哥知名建筑事务所,以其对材料、光线和空间的敏锐把握而著称。事务所在住宅设计和建筑改造领域具有丰富经验,擅长通过简洁的建筑语言创造富有诗意的空间体验。 项目概述 DDH房子扩建和翻新项目位于墨西哥城,是一座具有30多年历史的住宅改造项目。Taller Héctor Barroso建筑事务所在2017年至2019年间完成了这一住宅更新工程,通过重新配置建筑空间,为新的居住者创造了更适应当代生活方式的居住环境。 设计理念 DDH房子扩建和翻新项目的核心设计理念是在保留原有建筑特征的基础上,重新定义室内外空间关系。设计团队通过精心控制的开窗策略,在临街立面保持私密性的同时,内部空间逐步向花园环境开放,创造了一种渐进式的空间体验。 空间与功能 DDH房子扩建和翻新项目的空间组织体现了层次分明的设计逻辑。临街立面仅设置少量小窗,保护居住隐私;内部则通过一系列开口引入自然光线,空间逐渐向外延伸。建筑最终融入花园环境,大型窗户模糊了室内外界限,创造了连续的空间体验。 材料与技术 DDH房子扩建和翻新项目主要运用混凝土、木材和玻璃等材料。深棕色近乎黑色的外墙与灰色混凝土、室内木材形成鲜明对比,强化了光影效果。白色混凝土楼梯和金属吊顶等细节处理,展现了材料选择的精心考量。 项目特色与启发 DDH房子扩建和翻新项目的独特之处在于其对既有建筑价值的尊重与创新性改造。项目展示了如何在有限条件下通过精准的空间操作和材料运用,实现建筑品质的全面提升,为类似的老建筑改造项目提供了有价值的参考。 设计团队 Taller Héctor Barroso是墨西哥知名建筑事务所,以其对材料、光线和空间的敏锐把握而著称。事务所在住宅设计和建筑改造领域具有丰富经验,擅长通过简洁的建筑语言创造富有诗意的空间体验。 本文来自 © tallerhectorbarroso, 发布于 © 建筑学院官方网站。 未经授权,禁止转载或摘编。 编辑版本版权归 © 建筑学院官方网站 所有, 设计、图纸及照片版权归设计方 © tallerhectorbarroso ↗ 所有。 查看作者在建筑学院发布的更多作品: tallerhectorbarroso @ 建筑学院官方网站 DDH House Enlargement and RenovationTaller Héctor Barroso住宅改造设计墨西哥城建筑现代住宅 tallerhectorbarroso事务所 & 设计师 下载原图 收藏 0 关于作者 tallerhectorbarroso事务所 & 设计师 关注私信 14 文章 0 评论 0 粉丝 Taller Héctor Barroso是墨西哥知名建筑事务所,由Héctor Barroso Riba于2008年创立。工作室以"林中静谧"的设计哲学著称,擅长利用当地自然资源如植被、土壤和地理特征,创造与自然环境深度融合的建筑方案。其作品曾荣获加拿大AZ奖最佳住宅建筑奖、墨西哥双年展青年建筑师金牌等多项国际荣誉。Taller Héctor Barroso通过尊重场地文脉和采用本土材料,实现建筑与自然的和谐共生,在住宅和度假项目领域具有独特影响力。 Sierra Mimbre公寓建筑 / SIERRA MIMBRES APARTMENT BUILDING | Taller Héctor Barroso 上一篇 2026-02-21 下午10:06 Catarina House / Casa Catarina | Taller Héctor Barroso 下一篇 2026-02-21 下午10:06 猜你喜欢 巴达伦萨35座房屋 / 35 Homes in Badalona | 托尼·希罗内斯|Toni Gironès 2025-11-16 公共建筑设计 Tulum的六座房屋 / Six Houses in Tulum | Taller Héctor Barroso 2026-02-20 住宅建筑设计 帕拉尔大街工作室和公寓 / Studio and Apartment on Calle Parral | Taller Héctor Barroso 2026-02-20 住宅建筑设计 洛杉矶四座房子 / FOUR HOUSES IN LOS HELECHOS | Taller Héctor Barroso 2026-02-18 住宅建筑设计 洛佩兹科尔蒂亚710公寓楼 / LÓPEZ COTILLA 710 APARTMENT BUILDING | Taller Héctor Barroso 2026-02-18 住宅建筑设计 卡波体育复合体 / CABO SPORTS COMPLEX | Taller Héctor Barroso 2026-02-17 体育建筑 发表回复 请登录后评论...登录后才能评论 提交