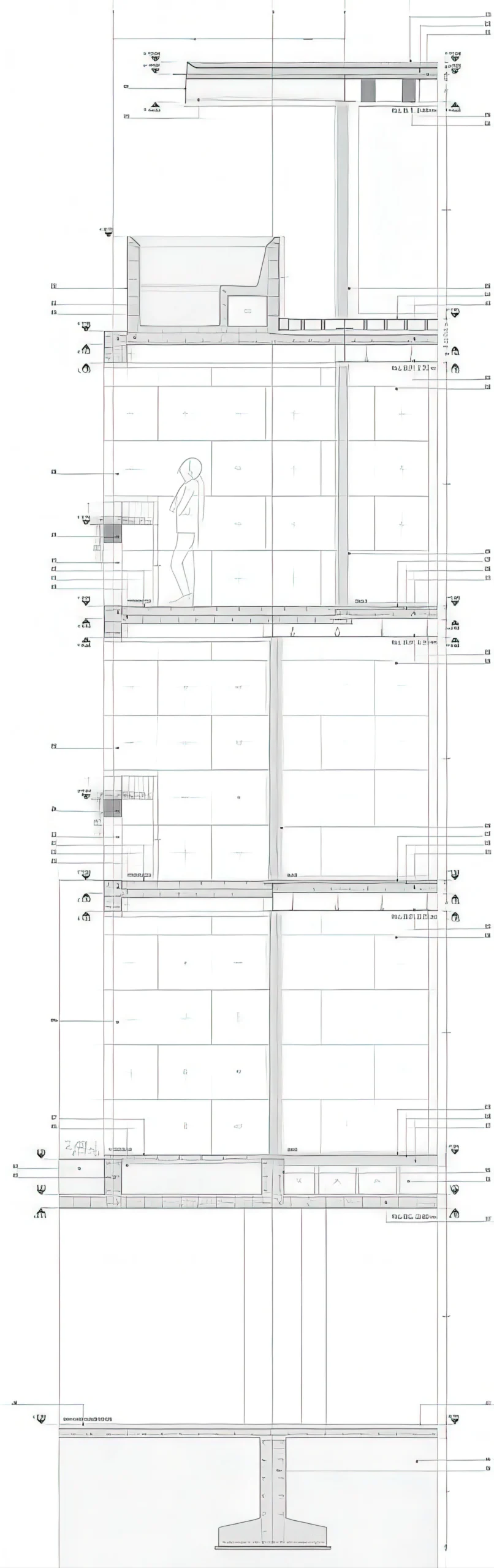
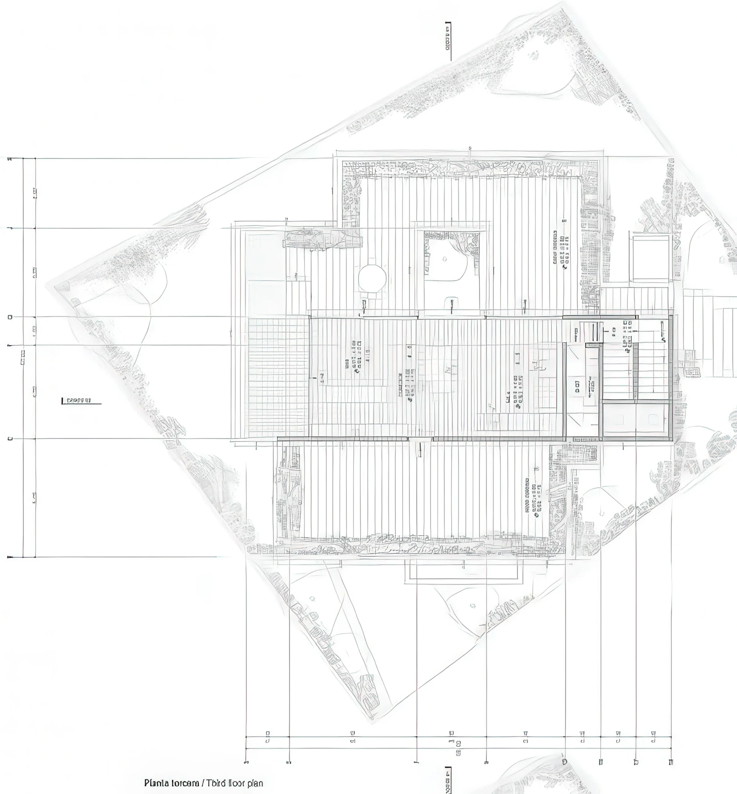
Sierra Mimbre公寓建筑 / SIERRA MIMBRES APARTMENT BUILDING | Taller Héctor Barroso tallerhectorbarroso • 2026-02-21 下午10:06 • 住宅建筑设计, 公寓住宅设计, 建筑设计 Sierra Mimbre公寓建筑由Taller Héctor Barroso设计,位于墨西哥城西部,是一座三层公寓住宅。建筑基于原有住宅基础重建,通过白色混凝土体量与大型开窗设计,巧妙平衡城市景观与私密空间需求,展现当代住宅建筑的精致质感。 设计: tallerhectorbarroso 类型: 建筑设计 功能: 独立住宅 风格: 当代建筑 材料: 尺度: 中型建筑 地点:墨西哥城 时间: 2017年 项目概述 Sierra Mimbre公寓建筑位于墨西哥城西部,是一座三层公寓住宅项目,建于2014至2017年间。该项目在原有住宅基础上重建,包含三个独立公寓单元,总建筑面积约600平方米,体现了现代城市住宅的更新与再生。 设计理念 Taller Héctor Barroso的设计理念强调对场地原有布局的尊重与延续。Sierra Mimbre公寓建筑通过保留原有基础与空间逻辑,在紧凑的城市地块中实现新旧建筑的和谐共存,同时回应墨西哥城特有的城市肌理与生活环境。 空间与功能 Sierra Mimbre公寓建筑的空间组织体现了精心设计的双重性:东立面相对封闭,仅设狭长开口引入光线;西立面则完全开放,通过大型玻璃窗框取城市日落景观与现有橡树美景。三个公寓单元分别设置在不同楼层,包括底层公寓、首层公寓和顶层复式公寓,每个单元都享有独特的空间体验与视野。 材料与技术 Sierra Mimbre公寓建筑主要采用白色混凝土结构,结合钢材、玻璃和木材等材料。建筑追求材料间的平衡与和谐,混凝土的粗犷质感与木材的温暖特性形成对比,外露木结构元素作为可选构件完善建筑整体。技术细节包括倒置钢筋混凝土网格和防水层处理,确保建筑性能与耐久性。 项目特色与启发 Sierra Mimbre公寓建筑的特色在于其巧妙的空间策略与材料表达,展示了如何在城市更新项目中保持场地记忆的同时创造现代居住体验。该项目为城市住宅设计提供了重要参考,特别是在高密度城市环境中平衡私密性与开放性的设计方法。 设计团队 Taller Héctor Barroso是墨西哥知名建筑设计事务所,专注于住宅与小型建筑项目。该团队以对材料、光线与空间的精细处理著称,在Sierra Mimbre公寓建筑中展现了其对城市居住环境的深刻理解与设计创新。 项目概述 Sierra Mimbre公寓建筑位于墨西哥城西部,是一座三层公寓住宅项目,建于2014至2017年间。该项目在原有住宅基础上重建,包含三个独立公寓单元,总建筑面积约600平方米,体现了现代城市住宅的更新与再生。 设计理念 Taller Héctor Barroso的设计理念强调对场地原有布局的尊重与延续。Sierra Mimbre公寓建筑通过保留原有基础与空间逻辑,在紧凑的城市地块中实现新旧建筑的和谐共存,同时回应墨西哥城特有的城市肌理与生活环境。 空间与功能 Sierra Mimbre公寓建筑的空间组织体现了精心设计的双重性:东立面相对封闭,仅设狭长开口引入光线;西立面则完全开放,通过大型玻璃窗框取城市日落景观与现有橡树美景。三个公寓单元分别设置在不同楼层,包括底层公寓、首层公寓和顶层复式公寓,每个单元都享有独特的空间体验与视野。 材料与技术 Sierra Mimbre公寓建筑主要采用白色混凝土结构,结合钢材、玻璃和木材等材料。建筑追求材料间的平衡与和谐,混凝土的粗犷质感与木材的温暖特性形成对比,外露木结构元素作为可选构件完善建筑整体。技术细节包括倒置钢筋混凝土网格和防水层处理,确保建筑性能与耐久性。 项目特色与启发 Sierra Mimbre公寓建筑的特色在于其巧妙的空间策略与材料表达,展示了如何在城市更新项目中保持场地记忆的同时创造现代居住体验。该项目为城市住宅设计提供了重要参考,特别是在高密度城市环境中平衡私密性与开放性的设计方法。 设计团队 Taller Héctor Barroso是墨西哥知名建筑设计事务所,专注于住宅与小型建筑项目。该团队以对材料、光线与空间的精细处理著称,在Sierra Mimbre公寓建筑中展现了其对城市居住环境的深刻理解与设计创新。 本文来自 © tallerhectorbarroso, 发布于 © 建筑学院官方网站。 未经授权,禁止转载或摘编。 编辑版本版权归 © 建筑学院官方网站 所有, 设计、图纸及照片版权归设计方 © tallerhectorbarroso ↗ 所有。 查看作者在建筑学院发布的更多作品: tallerhectorbarroso @ 建筑学院官方网站 Sierra Mimbres Apartment BuildingTaller Héctor Barroso公寓住宅设计城市更新建筑墨西哥城住宅 tallerhectorbarroso事务所 & 设计师 下载原图 收藏 0 关于作者 tallerhectorbarroso事务所 & 设计师 关注私信 14 文章 0 评论 0 粉丝 Taller Héctor Barroso是墨西哥知名建筑事务所,由Héctor Barroso Riba于2008年创立。工作室以"林中静谧"的设计哲学著称,擅长利用当地自然资源如植被、土壤和地理特征,创造与自然环境深度融合的建筑方案。其作品曾荣获加拿大AZ奖最佳住宅建筑奖、墨西哥双年展青年建筑师金牌等多项国际荣誉。Taller Héctor Barroso通过尊重场地文脉和采用本土材料,实现建筑与自然的和谐共生,在住宅和度假项目领域具有独特影响力。 Tulum的六座房屋 / Six Houses in Tulum | Taller Héctor Barroso 上一篇 2026-02-20 下午9:25 DDH房子扩建和翻新 / DDH HOUSE ENLARGEMENT AND RENOVATION | Taller Héctor Barroso 下一篇 2026-02-21 下午10:06 猜你喜欢 五幢松间房 / FIVE HOMES AMONG PINES | Taller Héctor Barroso 2026-02-19 住宅建筑设计 DDH房子扩建和翻新 / DDH HOUSE ENLARGEMENT AND RENOVATION | Taller Héctor Barroso 2026-02-21 住宅建筑设计 加拉尔特住宅小区 / Residential Complex in Gallarate | 阿尔瓦罗·西扎|Álvaro Siza 2025-12-21 住宅建筑设计 Tulum的六座房屋 / Six Houses in Tulum | Taller Héctor Barroso 2026-02-20 住宅建筑设计 洛佩兹科尔蒂亚710公寓楼 / LÓPEZ COTILLA 710 APARTMENT BUILDING | Taller Héctor Barroso 2026-02-18 住宅建筑设计 加拉尔特住宅小区 / Residential Complex in Gallarate | 阿尔瓦罗·西扎|Álvaro Siza 2026-03-04 公寓住宅设计 发表回复 请登录后评论...登录后才能评论 提交